Details-DG2_A14.7
blockHeaderEditIcon

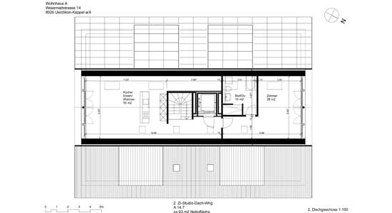
Wohnung 1.DG (A14.7)

Zimmer: 2,5 Loft mit direktem Liftzugang
Brutto-Wohnfläche: 100 m²
Kellerabteil: 7 m²
Netto Miete: 2000.00 CHF
Nebenkosten akonto: 190.00 CHF
Brutto Miete: 2190.00 CHF
Tiefgaragenplatz: 120.00 CHF

 

A-DG2
blockHeaderEditIcon

 

 

 

A_2.DG_2.5Zi
blockHeaderEditIcon
Benutzername:
User-Login
Ihr E-Mail
*